Contact
Email 360 Porperties NI Call 360 Properties NI 028 2565 4744
Back To Search Results
Sale agreed | 3 Bed Bungalow, 75 sq. metres |
Sale agreed £89,950

25 Lanntara Ballymena , BT42 3BE

Sale agreed £89,950

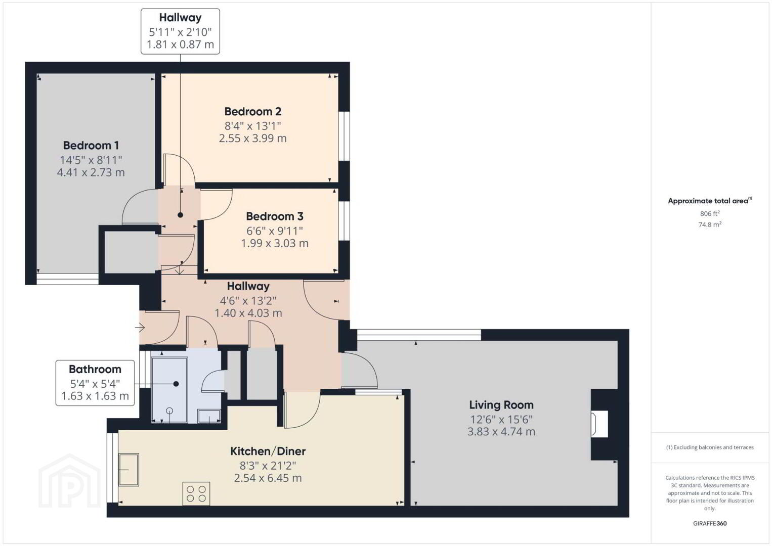
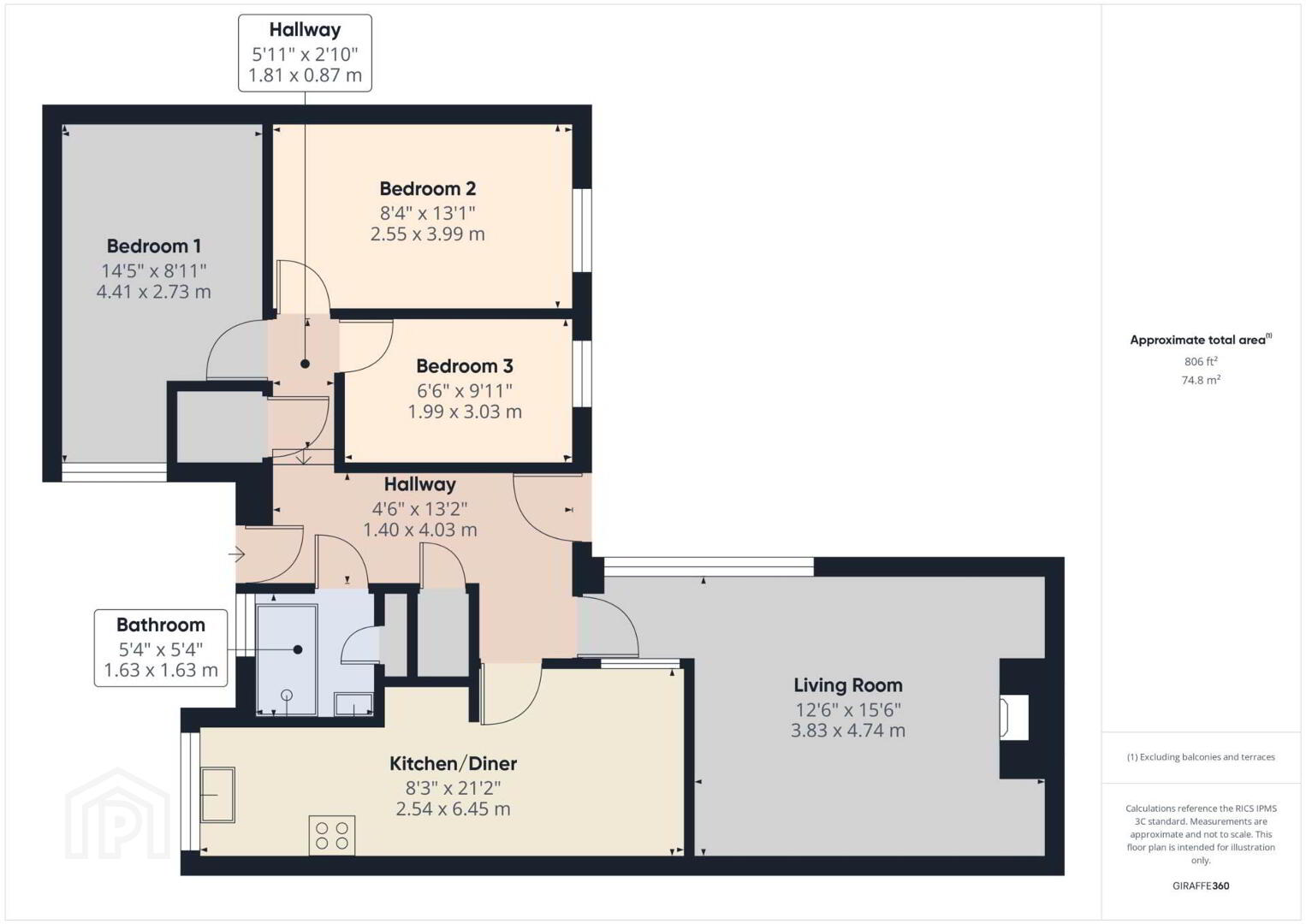
Key Information

Address 25 Lanntara, Ballymena
Style Bungalow
Status Sale agreed
Price Offers over £89,950
Bedrooms 3
Bathrooms 2
Receptions 1
Heating Oil
EPC Rating E51/C73

Summary

  • Three bedroom semi-detached bungalow.
  • Set in the well established Lanntara.
  • Ideally positioned off the Antrim Road,
  • Easy access to local amenities
  • Spacious kitchen/diner.
  • Low maintenance yard.
  • Oil fired central heating and uPVC double glazing

Additional Information

360 Properties are pleased to bring to the market this three bedroom end terrace bungalow, set in the well established Lanntara. Ideally positioned just off the Antrim Road, the property benefits from being within walking distance of local amenities and offers convenient access to main commuter routes. Internally, the accommodation comprises a spacious open-plan kitchen and dining area, living room, three well-proportioned bedrooms, and bathroom with separate w/c. Externally, the property features low-maintenance paved patio areas to both the front and rear, as well as off-street parking. Other attributes include oil-fired central heating and uPVC double glazing throughout. Suitable for a wide range of buyers including those wishing to downsize and First Time Buyers. Viewing strictly by appointment only.

Hall:
13`2`` x 4`6``
Feature wall panelling. Laminate floor.

Kitchen/Diner:
21`2`` x 8`3``
Range of low and eye level traditional style beech units with black speckled work top. Stainless steel sink with drainer bay and mixer tap. Space for fridge/freezer and hob/oven with stainless steel extractor fan over. Plumbed for washing machine. Feature wall panelling. Tile and laminate floor.


Living Room:15`6`` x 12`6``Wood burning stove with feature brick inset and tile hearth. Tile floor.



Bedroom 1:14`5`` x 8`11``
With carpet.



Bedroom 2:13`1`` x 8`4``
Linoleum floor.



Bedroom 3:9`11`` x 6`6``
With laminate.




Bathroom:
5`4`` x 5`4``
Hotpress. Vanity wash hand basin and mains shower. Fully tiled walls and floor.



W/C:
Low flush w/c. Fully tiled walls and floor.

EXTERNAL

Front: Paved patio area.

Rear: Fully enclosed paved patio area bound by wall and fence.

FREEHOLD

Rates: Approx. £616 per annum.

Notice
Please note we have not tested any apparatus, fixtures, fittings, or services. Interested parties must undertake their own investigation into the working order of these items. All measurements are approximate and photographs provided for guidance only.

Need some more information?

Fill in your details below and a member of our team will get back to you.

Please check you have entered all details correctly: